Aktuelle Projekte
Wohngemeinschaftshäuser am Landsknechtweg/Oberkirchweg
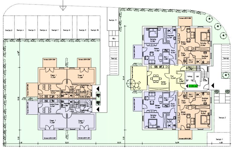
Wohngemeinschaftshaus A (r.) und Wohngemeinschaftshaus B (l.)
Im Rahmen des sozialen Wohnprojektes eines Vereins der Kinder- und Jugendhilfe werden junge Heranwachsende schrittweise und in gemeinschaftlicher Umgebung auf ein eigenständiges Leben vorbereitet. Den spezifischen Bedürfnissen dieser Bewohnergemeinschaften angepasst hat Wir schaffen Quartiere in Zusammenarbeit mit dem Leiter des Projektes zwei Wohngemeinschaftshäuser geplant.
Dort können in sieben auf die zwei Wohnhäuser aufgeteilten Wohnungen mit einer Gesamtfläche von 1055m² junge Menschen in gegenseitiger Unterstützung zusammenleben und gleichzeitig selbstständig Erfahrungen für das spätere Erwachsenenleben sammeln.
Haus A
In Haus A sind alle Wohngemeinschaften, die Zuwegung im Gebäude sowie auch der Eingangsbereich barrierefrei und eingeschränkt mit Rollstuhl nutzbar geplant. Die maßgebenden Bereiche werden so gestaltet, dass sie bei Bedarf ohne größeren Aufwand an die individuellen Bedürfnisse der jeweiligen Nutzer/innen angepasst werden können.

Haus B
In Haus B werden die beiden Wohngemeinschaften im Erdgeschoss, die Zuwegung im Gebäude sowie auch der Eingangsbereich barrierefrei und eingeschränkt mit Rollstuhl nutzbar geplant. Die geplante Barrierefreiheit im Ober- und Dachgeschoss ist so beschaffen, dass ein späterer Umbau für weiteren bzw. über die Grundplanung hinausgehenden Individualbedarf möglich ist.

In beiden Häusern leben Heranwachsende in nach Bedarf zusammengesetzten Wohngemeinschaften – jeweils mit einer eigenen Küche ausgestattet - immer mit dem Ziel der Verselbständigung. Durch die flexible Grundrissgestaltung, die Barrierefreiheit und die kleinen Wohneinheiten sind diese Gebäude vielfach nutzbar, falls einmal eine Umnutzung notwendig werden würde.
So ist beispielsweise ein Pilotprojekt im Rahmen des Kinder- und Jugendhilfe-Vereins im Gespräch, in dem z.B. junge Studierende als Mitbewohner Patenschaften in der Wohngemeinschaft übernehmen und somit andere Bewohner in ihrer Entwicklung zu unterstützen. Dies kann durch konkrete Projekte aber auch durch Unterstützung im Alltag erfolgen.
Zunächst geht es aber erstmal darum, Heranwachsenden ein gemütliches und gemeinschaftlich aufgebautes Heim zu schaffen, in dem sie sich im Kreise Gleichaltriger entfalten und so wichtige Kompetenzen für ihre Zukunft erwerben können. Projekte wie dieses entsprechen damit genau der Zielsetzung, die Wir schaffen Quartiere bei unserer Arbeit in den Fokus setzen möchte.
